Для размещения изделия на большую глубину - возможна доукомплектация необходимым количеством горловин.
-
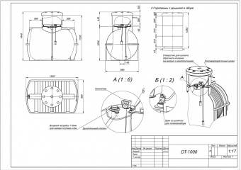
Артикул 11010007 Объем, л 1000 Длина, мм 1540 Ширина, мм 990 Высота, мм 1440 Диаметр горловины, мм 600 Высота горловины, мм 300 Материал Полиэтилен Температура эксплуатации, °C -30°C до +60°C Цвет Зеленый, Черный
Накопительная емкость DТ 1000 литров предназначена для подземного хранения и дальнейшего использования дизельного топлива. Все детали емкости, контактирующие с дизельным топливом, выполнены из стойкого к агрессивным веществам полиэтилена.
Комплектация
№ Наименование Кол-во Ед. изм. 01. Емкость накопительная 1 Шт. 02. Головина 300мм 1 Шт. 03. Люк 1 Шт. 04. Указатель уровня жидкости 1 Шт. 05. Адаптер герметичного ввода 1 Шт. 06. Труба с раструбом 110 1 Шт. 07. Отводы 3/4 2 Шт. 08. Лента-герметик 2 П.М. 09. Болт в комплекте 4 - 6 Шт. 10. Система забора топлива 1 Шт. 11. Топливоприемник 2,15 м. с поплавком 1 Шт. 12. Клапан дыхательный лабиринтный 1" с гайкой 1 Шт. 13. Переходник 1 1/2" - 2" 1 Шт. 14. Прокладка 1 Шт. 15. Гайка 2" 1 Шт. 16. Фитинг резьбовой 3/8" 2 Шт. 17. Трубка РА 10/12 2 П.М. Рекомендации по установке и монтажу накопителя, в подземном исполнении:
Площадка под накопитель должна располагаться на расстоянии не менее 5 метров от дороги и не менее 3 метров от деревьев.
Глубина заложения накопителя зависит от глубины подводящего трубопровода, местных норм глубины промерзания грунта или определяется проектом. Если уровень грунтовых вод расположен выше чем отметка низа накопителя, то необходимо закрепление, которое производится пластмассовым или капроновым канатом к бетонной плите. В общем случае корпус устанавливается на уплотнённый грунт дна котлована.
По технологии установки полимерных емкостей в грунт, засыпка пазух между стенками котлована и стенками емкости производится не вынутым грунтом, а песком без крупных твердых включений либо смесью песка и цемента (в пропорции 5:1), с одновременным постепенным заполнением накопителя водой. Песок укладывается послойно с обязательным трамбованием.
Верхний слой засыпается растительным грунтом.

